Reference
NAŠI ZÁKAZNICI K NÁM PŘICHÁZEJÍ Z RŮZNÝCH ČÁSTÍ SVĚTA
Zajištění rekonstrukce Vlašského Dvora v Českém Krumlově a jeho obsazení nájemci, vč. trvalé správy pro firmu Zambelli-technik s.r.o., Český Krumlov
Prodej provozních objektů a 50.000 m2 pozemků v areálu Slévárny České Budějovice v rámci zpeněžování konkurzní podstaty úpadce TRIVAL a.s., Č. Budějovice – likvidaci"
Prodej 1.940 bytů v majetku E.ON Česká republika, HOCHTIEF a.s., TRIVAL a.s., Jihočeských lesů a.s., Města Velešín, ap.
Prodej 52 rodinných domků z majetku Jihočeských lesů a.s. po celém Jihočeském kraji
Zajištění prodeje a pronájmu 315 garáží v Českých Budějovicích pro Strabag a.s.
Prodej 12 provozních objektů E.ON Česká republika na území Jihočeského a Jihomoravského kraje
Správa pronájmů jednotlivých prostor v areálu PCO-Vrbenská v Českých Budějovicích a Lišově
Zajištění prodeje a správa pronájmů jednotlivých objektů pro společnost GW Jihotrans a.s.
Prodej hotelů na Šumavě - novostavba hotelu v Novém Údolí, Stožec, horský hotel DOBRÁ CHATA - Zadov
Prodej 17 stavebních pozemků na Dobré Vodě u Českých Budějovic
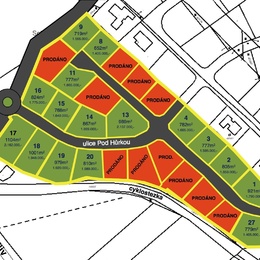
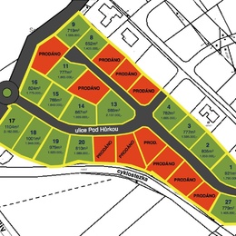
Prodej 28 stavebních parcel v Hluboké nad Vltavou, Selská pole
Prodej a pronájem 16 nových bytů z vlastnictví obce Dolní Dvořiště
Prodej průmyslového areálu o rozloze 8,6ha z majetku společnosti Wienerberger cihlářský průmysl, a. s.
Prodej 14 bytů z developerského projektu ,,Hastrman,, v Lipně nad Vltavou
Prodej rekreačního a školícího zařízení na Šumavském Javorníku z majetku Jihočeské univerzity.
Správa pronájmu 14 bytů v bytových domech v Českých Budějovicích v ulici Jeremiášova a J.Š.Baara
Správa pronájmu 10 bytů v bytovém domě v Kamenném Újezdě
Zajištění správy pronájmů průmyslového areálu ve Dvořákově ulici pro společnost Viscofan CZ s.r.o. České Budějovice
Vymezení jednotek a prodej bytů z majetku městyse Besednice, města Třeboň
Výběr z prodaných bytů
Byty jsou základním stupňem bydlení. Prodej a pronájem bytů vždy bude nejdůležitějším segmentem na trhu s nemovitostmi.
Bydlet potřebuje každý!
Výběr z prodaných domů
Prodej rodinných domů a chalup k bydlení po celých Jižních čechách je náš denní chleba a jsou to naše hlavní zakázky.
Neznáme lepší pocit než ten, když spokojený kupující bydlí ve svém novém domě.
Výběr z prodaných rekreačních objektů
Důležitý segment trhu – nemovitosti pro volný čas.
Před mnoha lety jezdil na chatu snad každý a dnes se tento trend vrací ZPĚT.
Kdo má vlastní chalupa má p....... v kalupu.
Výběr z prodaných pozemků
Pozemky jsou v každé době aktuální zboží na trhu s nemovitostmi!
Pro stavbu továren, domů, chalup, chat, chatiček nebo jen třeba pro pěstování zeleniny potřebujeme pozemek.
Ať je bída nebo blaho, pozemek vždy přijde draho!
Výběr z realizovaných komerčních nemovitostí a bytových domů
Na vrcholu nabídky každé RK je segment komerčních, průmyslových areálů a bytových domů jsou nesledovanější segment realitního trhu.
Tento segment nemovitostí je velmi vyhledávaný zákazníky v každé době i finanční krizi. Podniky potřebují neustále rozvíjet své aktivity, když bojují s konkurenceschopností nebo kupují tyto nemovitosti i jako investici. Investoři zahajují nové projekty na výstavbu bytových domů nebo realizují rekonstrukce starších bytových domů.
